weiter getestet (BMW-E24-Forum)
![[image]](images/uploaded/2017092617191959ca8c17bc008.jpg)
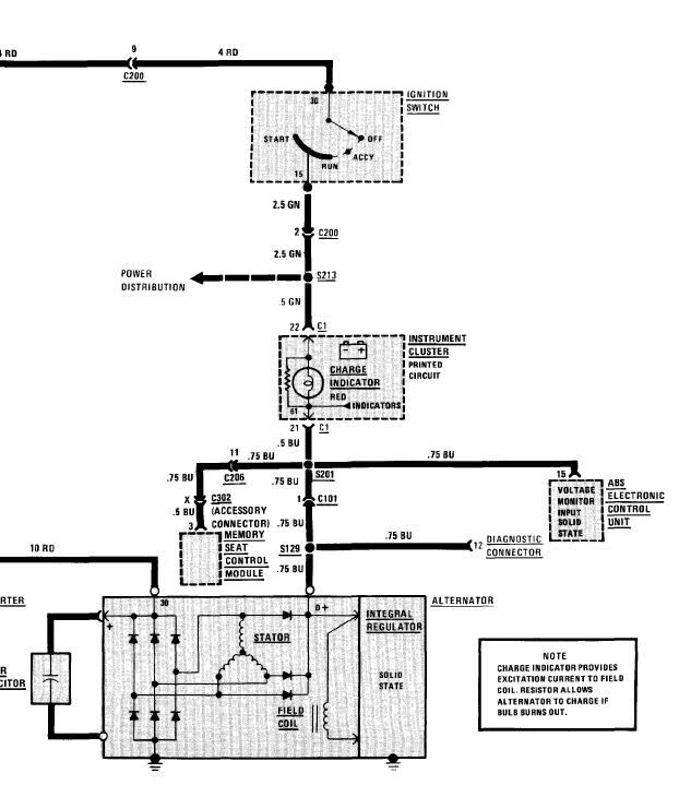
Der Pfad ist irgendwo bei S201, C101 oder S129 unterbrochen.
--
Herzliche Grüsse
Uli
Für eine glückliche Kindheit ist es nie zu spät
![[image]](images/uploaded/2017092617191959ca8c17bc008.jpg)
Der Pfad ist irgendwo bei S201, C101 oder S129 unterbrochen.
--
Herzliche Grüsse
Uli
Für eine glückliche Kindheit ist es nie zu spät
gesamter Thread: